Hotel

Costa Rica

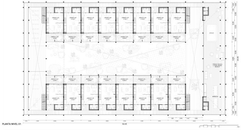
SOBRE EL PROYECTO

Diseñado para el estilo de vida del nómada digital, este hotel en Costa Rica fusiona productividad y relax en un entorno tropical exuberante. La propuesta se organiza en torno a un patio central biodiverso que funciona como pulmón y espacio de encuentro. Utilizando una arquitectura modular de madera con cerramientos de lamas orientables, las unidades de vivienda y espacios de co-working garantizan ventilación natural y privacidad. Un refugio contemporáneo que celebra la conexión con la naturaleza sin perder la funcionalidad tecnológica.

 

MÁS PROYECTOS
Final_04
Timbo Masterplan
c192c4_ebdc566cc3e84dc6bb9b22e42f8d83d6mv2
CASA LAGUNA DEL SAUCE
Sin título-1-10
Concurso: Plazas de barrio. Municipio B - Montevideo: Rosa Luna
Final_01
Casa Pinar A
c192c4_82f0d2319eae41108e578572cadfe363mv2
CONCURSO ARCHIVO BURGOS