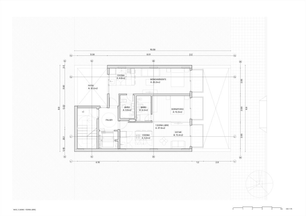
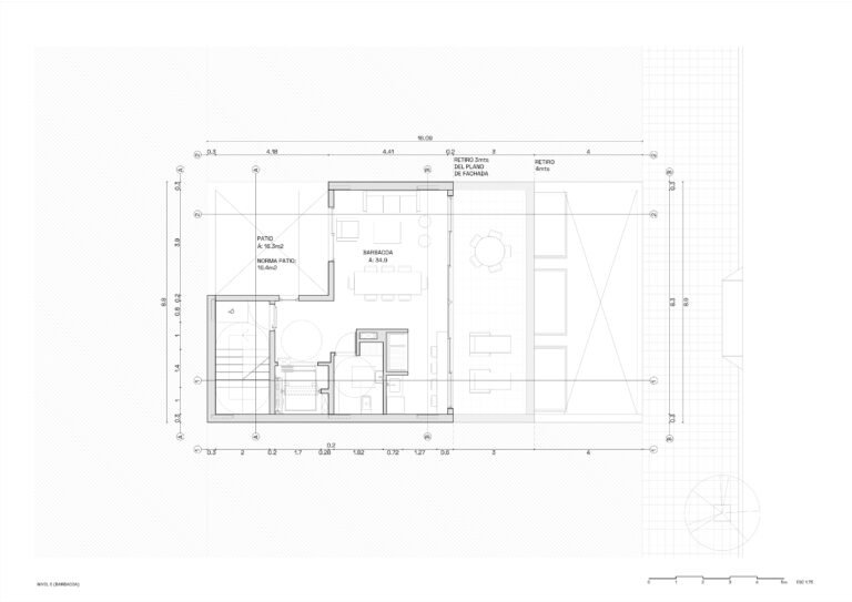
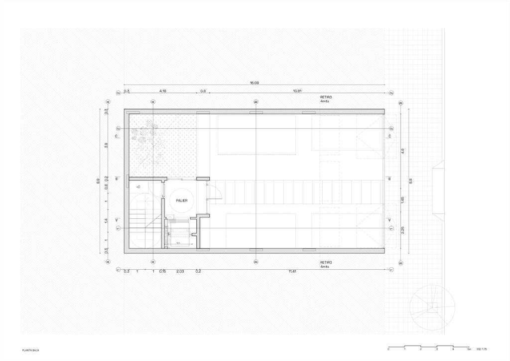
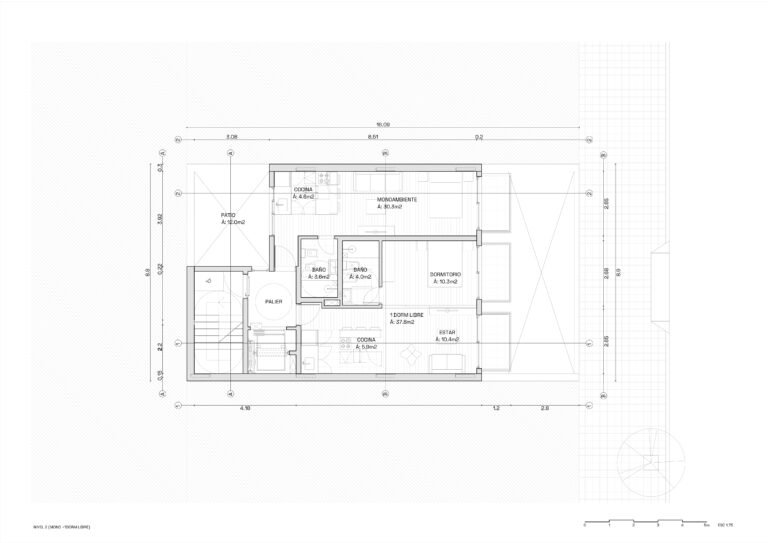
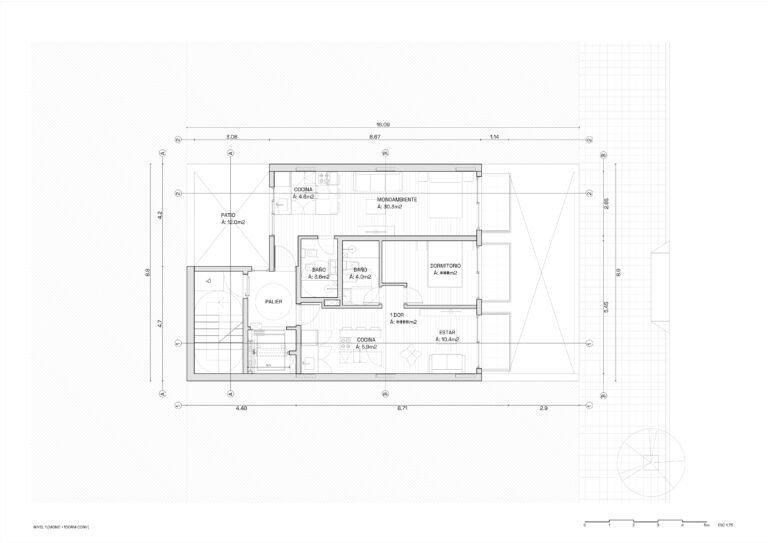
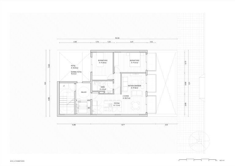
Ubicado en el corazón de La Blanqueada, este edificio de viviendas destaca por su fachada rítmica de balcones profundos y parasoles textiles que regulan la luz y la privacidad. El proyecto propone una planta baja libre y permeable, conectada a un patio jardín que promueve el encuentro vecinal. Los interiores, de estética contemporánea y hormigón visto, ofrecen espacios flexibles y luminosos que se adaptan a diversas configuraciones familiares, consolidando una propuesta de densidad urbana sensible y humana.

