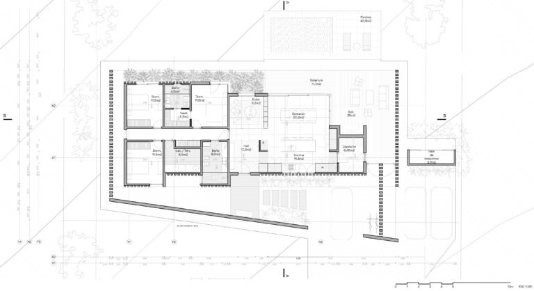
Ubicada en una chacra de Maldonado, esta vivienda se agazapa en un solo nivel para integrarse armónicamente a la escala rural. El diseño prioriza la privacidad mediante un perímetro de muros ciegos y calados que contienen espacios de servicio y transición. Su distribución lineal se orienta hacia el horizonte y las palmeras del entorno, capturando el atardecer. Con un área social integrada como corazón del hogar, la arquitectura logra un refugio hermético hacia el barrio y abierto al paisaje.

