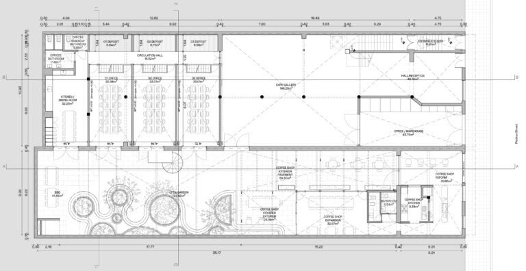
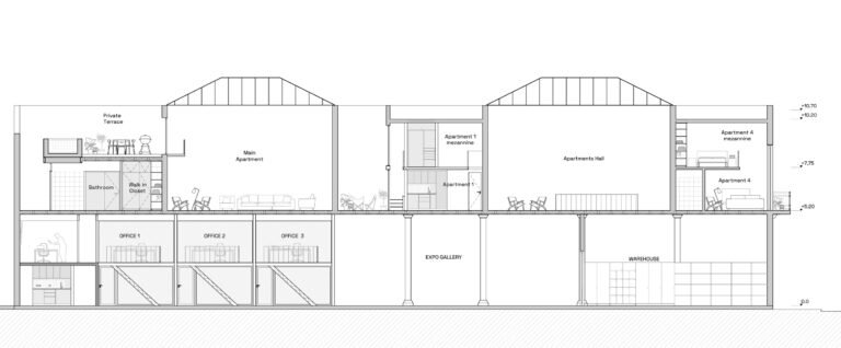
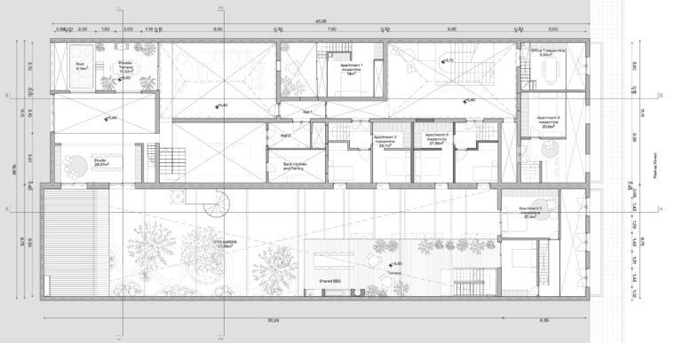
Ubicada en el casco histórico de Montevideo, esta intervención en un edificio de Grado 2 de protección patrimonial busca revitalizar la preexistencia mediante un diálogo entre épocas. El proyecto pone en valor elementos originales como sus imponentes claraboyas y muros de piedra, integrando nuevas estructuras metálicas y espacios verdes que oxigenan la planta. El resultado es una arquitectura híbrida donde la memoria urbana y la vida contemporánea conviven, transformando un espacio del siglo XIX en un motor cultural y funcional actual.

